Pirineos
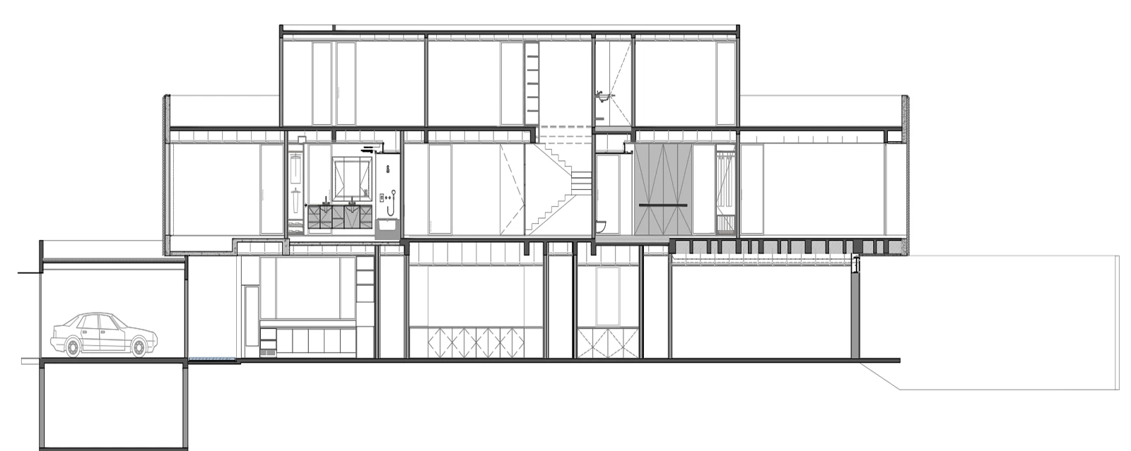
Ubicada en Lomas de Chapultepec, esta residencia de 2015 —en colaboración con Blancas Moran— combina un lenguaje contemporáneo con calidez doméstica. La fachada juega con ritmo y privacidad a través de paneles de madera, mientras que el interior revela una atmósfera serena y sofisticada, donde la luz natural, los materiales nobles y la presencia de arte y libros enriquecen la vida cotidiana.
- Año: – 2015
- Tipología: – Casa
- Ubicación: – Lomas de Chapultepec, México
- Socio: – Blancas Moran
- Gerente: – Maura Dolores
- Colaboradores: – Lighteam – Gustavo Aviles, PSP- Pedro Sanchez, Alain Rodriguez
Cada elemento del diseño responde a su entorno, integrándose de forma natural. Los materiales evolucionan con el tiempo, dotando a la arquitectura de vida propia. Dos décadas después, el proyecto sigue transformándose, recordándonos que la arquitectura es dinámica, adaptable y llena de historias.











